Key Features
- Close to South Ealing Underground Station
- STPP to do extension and go into Loft
- Close to Schools
- Close to Gunnesbury Park
- Quiet Road
- Garden
- Double Bedroom
- Freehold
Property Description
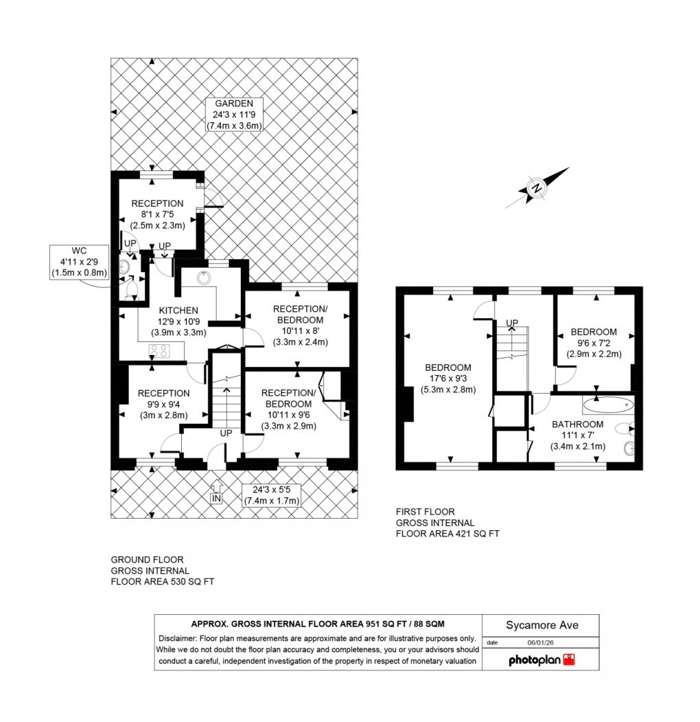
This lovely three-bedroom mid-terraced property in South Ealing has just come to the market and offers an excellent balance of peaceful residential living and everyday convenience. Situated on a quiet, friendly street in this highly desirable area, the property is approx 3 minutes walking distance of South Ealing Underground Station on the Piccadilly Line, providing direct access to Central London and Heathrow Airport. The location is particularly appealing to families and investment oppurtunties, with well-regarded local schools including Grange Primary School and Little Ealing Primary School close by. Residents also benefit from easy access to green spaces such as Gunnersbury Park, ideal for leisure and outdoor activities, along with a range of local amenities including cafés, restaurants, Sainsbury’s Local and Co-op, while Ealing Broadway offers further shopping, dining and entertainment options nearby. The property itself features a generously sized bathroom, a downstairs WC, double bedrooms upstairs and an additional ground-floor bedroom, along with a good-sized private rear garden. Subject to the necessary planning permissions (STPP), there is further potential to extend and convert the loft, making this a highly sought-after home with excellent future potential.
Floorplan
EPC
Market your property
with Homesearch
Book a market appraisal for your property today. Our virtual options are still available if you prefer.